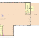
Plateau de bureau de 514 m² au 4ème étage d’un immeuble neuf. Il comprend 8 stationnements et une terrasse de 100 m².
Le plateau est livré brut de béton, fluides en attente.








Plateau de bureau de 514 m² au 4ème étage d’un immeuble neuf. Il comprend 8 stationnements et une terrasse de 100 m².
Le plateau est livré brut de béton, fluides en attente.
Prix de vente : 1 850 000 €
Infos complémentaires – Achat
*Emplacement indicatif
Les informations recueillies sur ce formulaire ont pour objectif de pouvoir répondre au mieux à votre demande. Le Havre Seine Développement vous garantit le respect de la confidentialité nécessaire à chaque projet. Aucune donnée personnelle vous concernant ne seront cédée ou louée à des tiers. Conformément à la loi « informatique et libertés », vous pouvez exercer votre droit d’accès aux données vous concernant et les faire rectifier en nous contactant par email : lhsd@lehavreseinedev.com
Le Havre Seine Développement est l’agence de développement économique dédiée aux entreprises souhaitant s’implanter, investir et se développer sur le territoire du Havre et de sa région (intercommunalités du Havre et de Fécamp).
Nous vous accompagnons à chaque étape de votre projet en vous proposant :
Grâce à notre expertise locale et à notre réseau, nous vous aidons à faire du Havre votre nouvelle terre d’opportunités. Notre accompagnement est gratuit et confidentiel !
Un projet ? Contactez-nous dès maintenant pour un accompagnement sur mesure : 02 76 40 23 20 | lhsd@lehavreseinedev.com
Le Havre Seine Développement anime et pilote cette plateforme immobilière en partenariat avec les institutions publiques propriétaires de terrains et bâtiments économiques, ainsi que des agences immobilières spécialistes de l’immobilier d’entreprises.
















Cette plateforme immobilière est alimentée selon les informations transmises par nos partenaires publics et les agences spécialisées dans l’immobilier d’entreprises. Le Havre Seine Développement diffuse ces annonces dans le but de pouvoir proposer des solutions d’implantation aux entreprises et ne perçoit pas de commission ni aucune forme de rémunération pour leur diffusion ou leur suggestion à ses contacts.
Pour offrir les meilleures expériences, nous utilisons des technologies telles que les cookies pour stocker et/ou accéder aux informations des appareils. Le fait de consentir à ces technologies nous permettra de traiter des données telles que le comportement de navigation ou les ID uniques sur ce site.
Le fait de ne pas consentir ou de retirer son consentement peut avoir un effet négatif sur certaines caractéristiques et fonctions, telles que la consultation des cartes ou la gestion d'annonces favorites.